Featured Post

50+ Agricultural Gypsum Powder Pictures

10+ Adu Architect Plans PNG

10+ Adu Architect Plans PNG. If you're considering building an adu in los angeles, the cost is probably one of the first questions in your head. We follow the latest building codes and architectural designs.

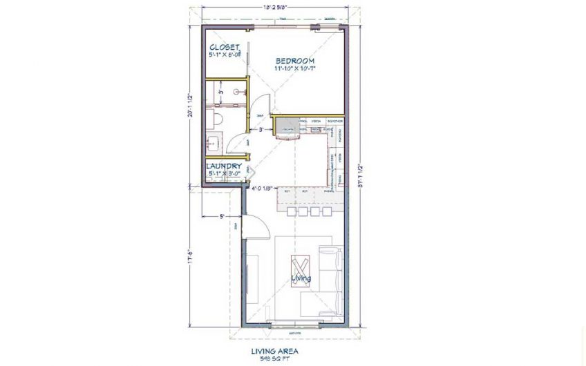
ADU Design Plan #LDC-1937 - ADU Building Plans
ADU Design Plan #LDC-1937 - ADU Building Plans from adubuildingplans.com
Find costs to hire architects with hourly rates, prices per square foot or by standard. You can legally rent out your adu in your backyard, it's the new law! Adu construction & design offers professional accessory dwelling unit remodeling services throughout los angeles and sothern california.

We'll help with your permitting, planning and adu builders.

Adu plans and drawings required for adu projects, to define the production details into bid documentation such as adu plans online. Rost architects luxury adus have efficient open floor plans with modern designs. You can legally rent out your adu in your backyard, it's the new law! Our plans are functional and customizable, and our service will guide you through the adu design process, so that.

Komentar